600 S Fayette St, Alexandria, VA 22314
Toggle Navigation
Images
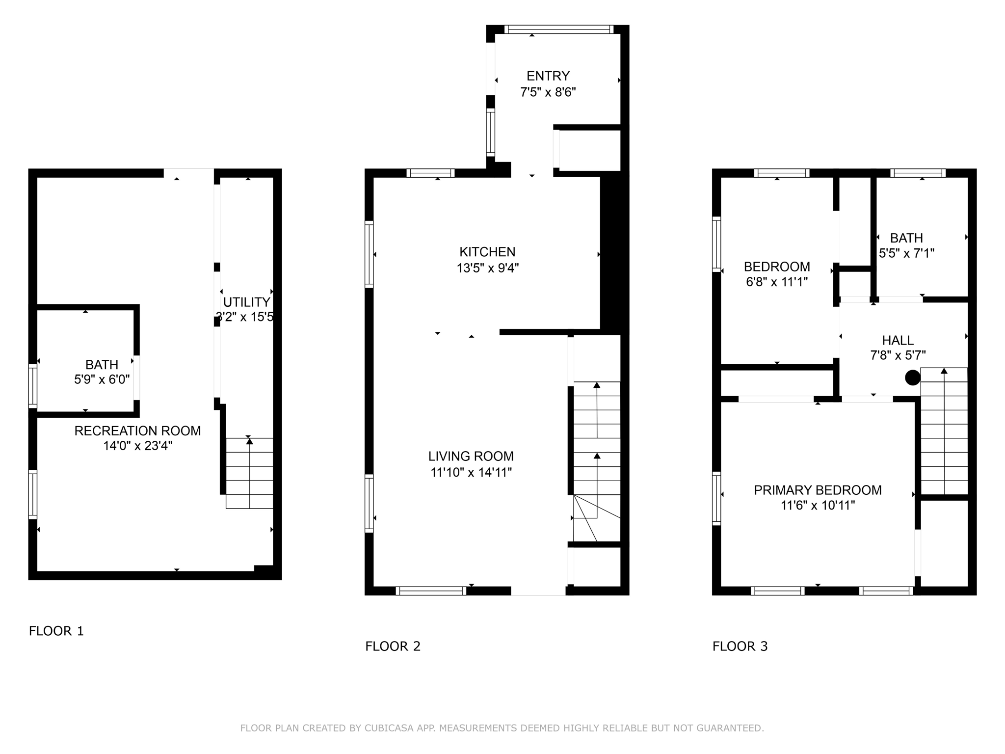
Floor Plans
3D Tour
Map
600 S Fayette St
Alexandria, VA 22314
Scroll to Content
Images
Slideshow
Photo Grid
Hide
Previous
Next
Show more
Floor Plans
Slideshow
Photo Grid
Hide
Previous
Next
3D Tour
Content Coming Soon